
MONACO - Fontvieille - THE CYCLADES
In the district of Fontvieille, the "Cyclades" is a building, in a luxury condominium, Neo Provençal style, located facing the sea. The building is equipped with a swimming pool in the sea, concierge service And many green areas.
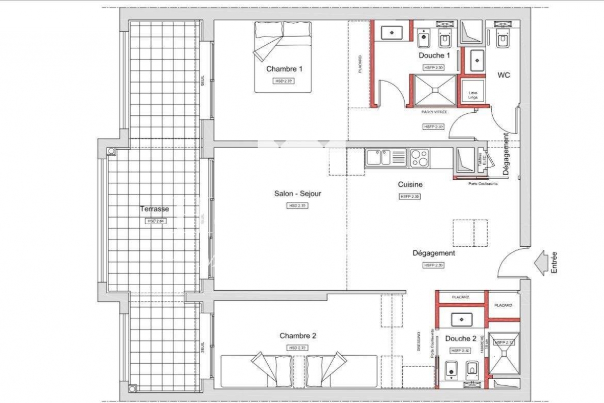
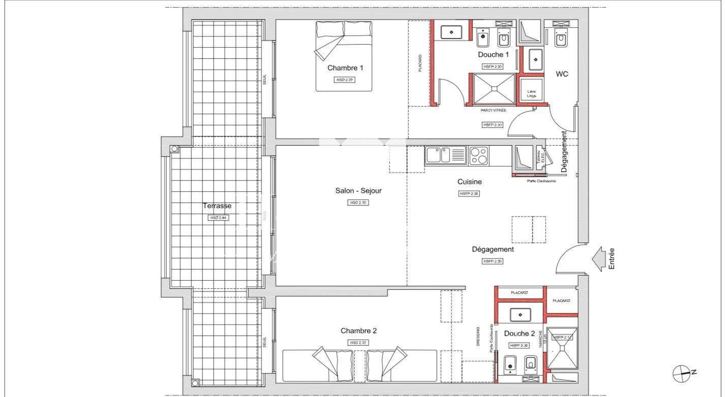
2 bedrooms apartment with a total surface area of 130 sqm, beautiful view of gardens and sea. The apartment was completely renovated with precious finishes including Dinesen parquet flooring for all Except those of the bathrooms, and Carrara marble for the bathrooms. The apartment is protected by an alarm system connected with Fontvieille police.
Composition:
- Entrance,
- spacious living room with equipped kitchen,
- two bedrooms with private bathroom,
- dressing room
- guest toilet.
A cellar, a loggia and a parking complete this offer.



